1201 Jagerson Avenue

Kingman, AZ 86401

928.692.6162

55+ Community

New Homes



Incoming Homes for sale with special lot rent options.

Check out this 2 bed 2 bath double wide approximately 1076 sq feet with a porch. Large open kitchen and living space enclosed laundry with many upgrades.

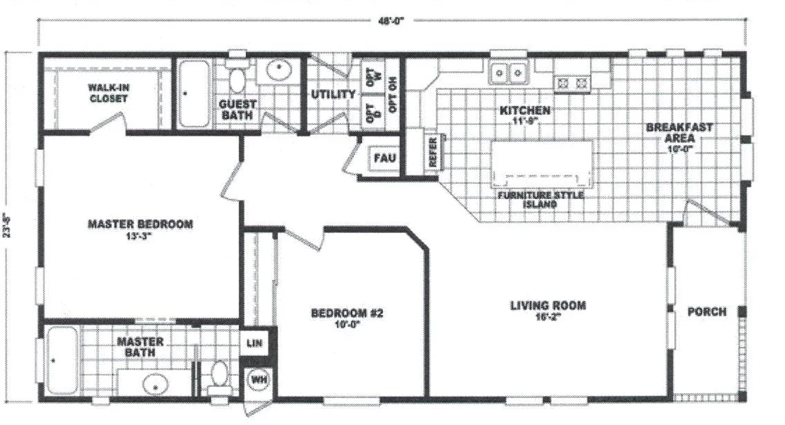
Due to arrive the first week in January 2019 The lovely Durango Double wide boasts approximately 1280 sq feet. This home is a three bedroom 2 bath split floor plan with a large open kitchen and living area. Many upgraded features and a great lot with specials on lot rent. This home has arrived and is located at 1141 Aralia.



Explore Kingman Ranch!

Explore

New Homes

This 2 bed 2 bath home will be arriving shortly. Many upgrades. Please give us a call at 928-757-2127

This 2 bed 2 bath double wide is on its way….give us a call for all the info at 928-757-2127